卸船機(岸橋)超載限制器

岸吊安裝示意圖
一、卸船機超載限制器(岸橋超載限制器)概述
岸吊在使用的過程中需要起吊不同噸位的重物,因此就需要配備一套對起吊重物進行實時監控,當前工作狀況作出判斷,作出相應的聲光指示如正常起重狀態,滿載狀態,超載狀態的自動化監控儀表.
我公司架橋機超載限制器就是針對該類吊車而設計,廣泛應用于架橋機的安全保護裝置,保證吊車及操作人員安全.該產品吸收了市場上現有超載限制器眾多的優點,通過對吊車的起升結構的取力(重量傳感器)反饋到該儀表中進行采集,對比,讀取,判斷后顯示當前重量并對其進行相應工況指示,超過額定重量后快速切斷吊車吊鉤起升回路,使吊車不能起吊重物,從而達到保護吊車及操作人員安全的目的.該系列裝置具有性能好、可靠性高、裝置輕巧方便等特點.
二、卸船機超載限制器(岸橋超載限制器)配置
|
配置 |
數量 |
型號 |
說明 |
|
主機儀表 |
1 |
WTZ-A(300) |
藍屏點陣液晶顯示,顯示兩路或以上重量信號,5個繼電器,壁掛式 |
|
|
|
軸銷式傳感器(ZX) |
|
|
旁壓傳感器(PY) |
|||
|
板環拉式傳感(BH) |
三、卸船機超載限制器(岸橋超載限制器)配置說明
(一)超載限制器主機儀表
卸船機超載限制器(岸橋超載限制器)推薦儀表型號:WTZ-A(300)
信號監測:2路-4路重量信號,配備5個繼電器,可滿足5鐘狀態要求。
屏幕顯示:大屏幕藍屏液晶顯示,還有載荷率百分比棒狀圖顯示
信號輸出:輸出繼電器信號或RS485信號及4-20mA
安裝方式:壁掛式

WTZ-A(300)型超載限制器儀表 WTZ-A(300)型超載限制器儀表尺寸圖
船機超載限制器(岸橋超載限制器)主機可選其它儀表型號:WTZ-A(100)、WTZ-A(400)、WTZ-A(150)、WTZ-A(230)、WTZ-A(240)、WTZ-A

WTZ-A100超載限制器 WTZ-A400超載限制器 WTZ-A150超載限制器 WTZ-230超載限制器 WTZ-A240超載限制器 WTZ-A超載限制器
(二)重量傳感器
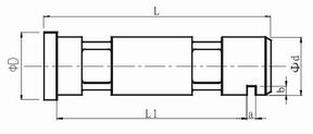
a、ZX型軸銷式傳感器
安裝位置:安裝在起重繩導向輪中
安裝方式:替換原受力點的軸銷
取力方式:測量受力點的壓力
注意事項:①非標準傳感器需要定做
②受力點與傳感器的剪切力應該始終保持一致,以保證傳感器的輸出線性
量程選擇:當前受力點的最大受力


ZX型軸銷式傳感器尺寸圖 ZX型軸銷式傳感器尺寸表 ZX型軸銷式傳感器小量程尺寸圖

ZX型軸銷式傳感器 ZX軸銷傳感器安裝在揚州科進船業有限公司
b、PY型旁壓傳感器
安裝位置:鋼絲繩固定端
取力方式:鋼絲繩張力
安裝要求:岸橋起重繩必須有固定端

PY型旁壓傳感器的外形尺寸圖

PY型旁壓傳感器 PY型旁壓傳感器安裝方式
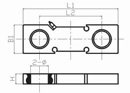
c、BH-2型板環拉式傳感器
安裝位置:安裝在起重繩的固定繩(定繩)與起重梁連接處。
取力方式:測量起重繩的拉力。
注意事項:①起重繩必須有固定繩(定繩)
②固定繩與臂桿連接處無定滑輪
量程選擇:最大額定起重量÷鋼絲繩倍率=傳感器量程


BH-2型板環拉式傳感器的外形尺寸圖

BH-2型板環拉式傳感器 BH-2型板環拉式傳感器安裝實例
四、超載限制器工作原理
超載限制器是由傳感器、運算放大器、控制執行器和載荷指示計等部分組成,將顯示、控制和報警功能集于一身。當起重機起吊物品時,傳感器產生變形,把載荷重量轉化為電信號,經過運算放大,指示出載荷的數值。當載荷達到額定值的 90%時,發出預警信號;當載荷超過額定載荷時,切斷起升機構的動力源。超載限制器廣泛用于橋式類型起重機和升降機。有些臂架類型起重機(如塔式起重機、門座起重機)將超載限制器與力矩限制器配合使用。
五、超載限制器訂貨須知
1、具體型號(WTZ-A100, WTZ-A200數碼管;WTZ-A300,黑白屏or藍屏;WTZ-A400,彩屏機,具體見產品選型手冊)
2、請提供橋機的額定重量,倍率,鋼絲繩直徑,盡量提供吊車在空鉤的狀態下傳感器受力噸位,吊車起吊最大起重量時傳感器受力噸位,以便我們在生產過程中可以將儀表調整到最適合該吊車工作狀態.
3、對與選擇不同傳感器請提供詳細的尺寸,以便我公司加工套件。
選擇軸承座式傳感器請提供軸承座底座尺寸,包括長度,孔距,高度,主軸軸殼外徑,內徑,寬度.
選擇拉式傳感器請提供鋼絲繩械套或者畸形環的尺寸,包括寬度,軸銷長度,直徑,是否為非標準軸銷(如內細外粗),一般鋼絲繩與吊車連接處有一個吊耳,需要那里的吊耳間的寬度,軸銷尺寸.
4、提供傳感器到司機駕駛室的線纜長度。
5、請提供需要幾路重量信號控制,需要幾種類型控制,如超載(超過額定重量)等等,控制繼電器需要給出哪種狀態(常開或者常閉).
六、其他
岸吊還可選配風速儀。風速儀安裝在門座式起重機迎風處。