固定吊力矩限制器

固定吊力矩限制器安裝示意圖
一、 固定吊力矩限制器概述:
固定吊在工作時,需根據現場實際情況而經常改變工況進行起重作業,如改變起吊角(幅度)、起吊臂長等,而在不同工況參數下所能起吊的最大額定起重量及工作最大、最小變幅是相應不同的,因此需要一套裝置對以上參數綜合監測判斷,作出起重機正常工作、滿載、超載、變幅超上限、變幅超下限等工作狀態的指示并相應報警、提示、控制,以保證起重機械的正常工作。
力矩限制器就是應上述要求,應用于起重機械的安全保護裝置。我公司在總結國內外力矩限制器經驗的基礎上,應用新技術,新器件,研制生產了WTL系力矩限制器產品。力矩限制器主要組成部分有顯示儀表(含處理器),信
號盒、角度儀或者角度測長儀(主要為臂桿可變化的汽車吊)、重量限制器、風速傳感器、風向傳感器等。
二、 固定吊力矩限制器配置
|
配置 |
數量 |
型號 |
說明 |
|
主機儀表 |
1 |
WTL-A(200)(推薦) |
顯示重量、幅度、角度、額重、載荷率等。有原始參數備份和恢復功能 |
|
角度儀 |
1 |
JD-180 |
采用防水型導電塑料電位器 |
|
|
1或2 |
三滑輪傳感器(SHL) |
有主副鉤的裝兩個重量傳感器,無副鉤的裝一個重量傳感器 |
|
板環拉式傳感器(BH-2) |
|||
|
旁壓傳感器(PY) |
|||
|
軸銷式傳感器(ZX) |
|||
|
柱式傳感器(JZ) |
三、固定吊力矩限制器配置說明
(一)力矩限制器主機儀表
固定吊力矩限制器
信號監測:兩路重量信號及一路角度信號監測
屏幕顯示:藍色或灰白色液晶屏顯示
信號輸出:輸出繼電器信號或RS485信號及4-20mA
供電方式:交流220V、380V、直流24V
安裝方式:壁掛式
WTL-A(200)型力矩限制器儀表 WTL-A200型力矩限制器裝在廣東中藝珠海海重鋼管廠固定吊
固定吊力矩限制器其它可選儀表型號:WTL-A300、WTL-A400、WTL-A500、WTL-A600

WTL-A300力矩限制器儀表 WTL-A400力矩限制器儀表 WTL-A500力矩限制器儀表 WTL-A600力矩限制器儀表
(二)角度儀
固定吊力矩限制器可用角度儀型號:JD-180型、JD-C90型
固定吊力矩限制器推薦角度儀型號:JD-180型
安裝位置:固定吊臂桿根部
安裝說明:角度儀水平線與臂桿平行

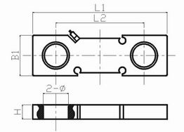
JD-180型角度儀的外形尺寸圖
JD-180型角度儀 JD-180角度儀安裝在廣東中藝珠海海重鋼管廠固定吊上
(三)重量傳感器
a、PY型旁壓傳感器
安裝位置:鋼絲繩固定端
取力方式:鋼絲繩張力
安裝要求:固定吊起重繩必須有固定端

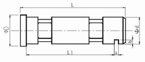
PY型旁壓傳感器的外形尺寸圖

PY型旁壓傳感器 PY型旁壓傳感器安裝方式
b、BH-2型板環拉式傳感器
安裝位置:安裝在起重繩的固定繩(定繩)與臂桿連接處。
取力方式:測量起重繩的拉力。
注意事項:①起重繩必須有固定繩(定繩)
②固定繩與臂桿連接處無定滑輪
量程選擇:最大額定起重量÷鋼絲繩倍率=傳感器量程


BH-2型板環拉式傳感器的外形尺寸圖

BH-2型板環拉式傳感器 BH板環拉式傳感器安裝在715噸固定吊上
c、SHL型三滑輪傳感器
安裝方式:安裝于固定吊起重繩上,可焊接在臂桿上(配彎板);也可隨起重繩位置變化而變化(配萬向結)。
取力方式:測量起重繩的張力。
量程選擇:請告知我公司單根鋼絲繩最大受力,我公司技術人員會為您計算出相應的傳感器量程。

SHL型三滑輪傳感器 SHL型三滑輪傳感器安裝實例
d、ZX型軸銷式傳感器
安裝位置:安裝在起重繩導向輪中
安裝方式:替換原受力點的軸銷
取力方式:測量受力點的壓力
注意事項:①非標準傳感器需要定做
②受力點與傳感器的剪切力應該始終保持一致,以保證傳感器的輸出線性
③如果選用軸銷傳感器的話,可以按原來的滑輪軸銷尺寸定做軸銷傳感器.將其更換即可。需要提供軸銷的詳細尺寸、擋板
的安裝位置、鋼絲繩的倍率、載荷曲線表等參數
量程選擇:當前受力點的最大受力


ZX型軸銷式傳感器尺寸圖 ZX型軸銷式傳感器尺寸表 ZX型軸銷式傳感器小量程尺寸圖

ZX型軸銷式傳感器 ZX軸銷傳感器安裝在廣東中藝珠海海重鋼管廠100t固定吊上
e、JZ-2型柱式傳感器
安裝位置:安裝在導向滑輪下
安裝方法:利用壓板或者類似于撬板的機械件壓住傳感器,使傳感器受力
取力方式:通過感應機械件的的受力,從而反映出鋼絲繩的受力
注意事項:①械件與柱式傳感器的接觸面應完全接觸,
②柱式傳感器受力最佳點為垂直于受力面,所以機械件盡量使傳感器為垂直受力
量程選擇:受力點的最大受力

JZ-2型柱式傳感器的外形尺寸圖

JZ-2型柱式傳感器 JZ柱式傳感器安裝在揭陽南泰起重25t固定吊上
四、力矩限制器控制原理
我公司力矩限制器常規控制有3個:幅度上限控制,幅度下限控制,超載控制,分別介紹如下:
1.幅度上限控制:當臂桿運行到最小幅度(最大角度)時,儀表發出聲光報警,幅度上限繼電器動作,切斷減幅回路,使臂桿停止減幅,但可以往安全方向(增幅)運動
2.幅度下限控制:當臂桿運行到最大幅度(最小角度)時,儀表發出聲光報警,幅度上限繼電器動作,切斷增幅賄賂,使臂桿停止增幅,但可以往安全方向(減幅)運動
3.超載控制:當實際起重量達到額定起重量的95%時,儀表發出滿載聲光報警,但不控制,當實際起重量達到額定重量的105%時,儀表發出超載聲光報警,超載繼電器動作,切斷釣上升回路及臂桿增幅回路,使吊車能夠往安全方向運動(減副或者落鉤)
五、力矩限制器訂貨注意事項
1、具體型號(WTL-A100,數碼管;WTL-A200,黑白屏or藍屏;WTL-A300,彩屏機,具體見產品選型手冊)
2、幾路重量(是否是主副鉤,或者是抓斗/吊鉤兩種狀態)
3、角度儀線長;
4、載荷曲線表,臂長、倍率、中心距;
5、傳感器是型號,尺寸,線纜長度;
6、重量傳感器(拉式傳感器)是否需要配套護板;
7、鋼絲繩直徑;
8、輸出控制:常規控制:上限、下限、超載;若有其它特殊要求,需特別備注;
9、電源類型(24V、220V 、380V)
六、其他
固定吊還可選配風速儀。風速儀安裝在固定吊迎風處。

廣東中藝重工固定吊安裝實例